桜川市下泉6LDK+3S中古住宅
ぜひ一度見ていただきたい、「桜川市下泉6SLDK中古住宅」です。徒歩34分の場所に桜川市立坂戸小学校があります。中古の戸建て物件は、経済的なメリットが大きいのが特徴です。当社ではたくさんの売買情報を取り扱っております。不動産の購入をお考えであれば、お気軽にお問い合わせください。スタッフが素敵な物件をご紹介させていただきます。
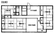
物件情報
周辺施設
桜川市下泉6LDK+3S中古住宅 の物件概要
【中古一戸建】| 所在地 | 茨城県桜川市下泉447-3 | ||
|---|---|---|---|
| 交通 | |||
| 価格 | 1,998万円 | 築年月(築年数) | 2014年 11月 ( 築11年 ) |
| 建物面積/坪数 | 186.31㎡/56.35坪 | 土地面積/坪数 | 542.75㎡/164.18坪 |
| 種別/構造 | 中古一戸建 / 木造 | 地目 | 宅地 |
| 備考 | 桜川市周辺にある物件をお求めの方は「桜川市下泉6SLDK中古住宅」はいかがでしょうか。こちらの物件は桜川市立坂戸小学校が2647m以内にあります。ニーズの高い中古の戸建て物件は、経済的なメリットも大きいです。桜川市には当物件以外にも魅力的な物件が多数ございます。詳しい情報が気になる方は、当社スタッフまでお気軽にご確認ください。 | ||
| 取扱会社 |
|
||
※地図上に表示される物件の位置は付近住所に所在することを表すものであり、実際の物件所在地とは異なる場合がございます。
桜川市下泉6LDK+3S中古住宅の販売物件情報


















