桜川市南飯田4LDK中古住宅
ぜひ一度見ていただきたい、「桜川市南飯田4LDK中古住宅」です☆徒歩32分の距離に岩瀬東中学校があるのも魅力☆前面道路6m以上の物件です☆設備や周辺環境が整っている中古戸建てはいかがでしょうか☆ご希望に沿った一戸建てをご紹介いたします☆桜川市の水戸線羽黒付近でマイホームの購入をお考えなら、お気軽にお問い合わせください(^_^)
物件情報
周辺施設
桜川市南飯田4LDK中古住宅 の物件概要
【中古一戸建】| 所在地 | 茨城県桜川市南飯田1069-10 | ||
|---|---|---|---|
| 交通 | |||
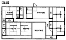
| 価格 | 1,298万円 | 築年月(築年数) | 1986年 5月 ( 築39年 ) |
| 建物面積/坪数 | 98.53㎡/29.8坪 | 土地面積/坪数 | 424.41㎡/128.38坪 |
| 種別/構造 | 中古一戸建 / 木造 | 地目 | 宅地 |
| 備考 | 徒歩12分の場所に桜川市立南飯田小学校があります☆こちらの土地は前面道路6m以上です☆快適な室内環境を持つ、中古の一戸建て物件です☆当社ではたくさんの売買情報を取り扱っております☆不動産の購入をお考えであれば、お気軽にお問い合わせください☆スタッフが素敵な物件をご紹介させていただきます(^^) | ||
| 取扱会社 |
|
||
※地図上に表示される物件の位置は付近住所に所在することを表すものであり、実際の物件所在地とは異なる場合がございます。
桜川市南飯田4LDK中古住宅の販売物件情報

















