桜川市真壁町亀熊 売店舗 1階
飲食店を始めたい方、また飲食店以外のお店を始めたい方に、建物ジャストサイズです!土地も広く駐車場や追加建物建築が出来る物件です!
-

- KASUMI(カスミ)FOODOFF(フードオフ)ストッカー真壁店
約1010m/13分

- セブンイレブン 茨城真壁古城店
約1119m/14分

- セブンイレブン 桜川桜井店
約1086m/14分

- コメリ真壁店
約1002m/13分
ローンシミュレーションこの物件を購入した場合の、月々の支払い価格の一例です。借り入れを保証するものではございません。
- 返済期間
-
- 金利
-
- ボーナス時の増額(1回分)
-
- 借入金額:
-
- 頭金:
-

- 毎月の返済額:
(※元利均等方式 金利5.00%まで ※返済年数5~50年まで入力できます)
(※ボーナスは年2回で計算しています。1000万円まで入力できます)
(※物件購入時、その他諸費用が発生する場合がございます)
情報の見方担当者のコメント 仲田克美

- 茨城県内唯一の国の重要伝統的建造物群保存地区に隣接する元割烹料理店の売り店舗です。
ポイント・特徴
物件概要
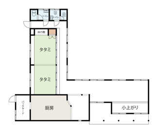
【店舗】 物件番号:101425186 情報更新日:2026年03月10日 次回更新予定日:2026年03月24日所在地 茨城県桜川市真壁町亀熊2017-2 交通 - 「真壁高校」バス停下車 徒歩6分
坪数/面積/土地面積 32.13坪 / 106.24㎡ / 818.10㎡ バルコニー面積 - 価格/坪単価 1,000万円 / 31.12万円 管理費 - 修繕積立金 - 駐車場/月額料金 - / - 土地権利 所有権 国土法届出要否 不要 用途地域 第一種低層住居専用 地目/地勢 宅地 / 平坦 種別/構造 店舗 / 木造 向き 南 築年月(築年数) 1994年 7月 (築31年) 所在階/階建 1階 / 1階建 棟総戸数/販売戸数 - / - 管理組合有無 - 管理形態 - 管理員の勤務形態 - 管理会社 - 取引態様 専任媒介 現況/引渡し 空家/即時 物件番号 101425186 取引条件の有効期限 2026年03月24日 設備条件 - プロパンガス
- 公営水道
- 公共下水
- 電気有
- ガスコンロ
備考 平面駐車場がある物件です。オススメの好条件の購入価格1,000万円の物件です(^o^) 取扱会社 - 桜リビング株式会社
- 茨城県桜川市明日香3丁目42
- TEL:0120-339-396
- 茨城県知事 (9) 第4125号
公益社団法人茨城県宅地建物取引業協会員
一般社団法人全国賃貸不動産管理業協会員
※地図上に表示される物件の位置は付近住所に所在することを表すものであり、実際の物件所在地とは異なる場合がございます。
物件お問い合わせ































